Tammiku põik 1, Peetri, 3-tuba

Valgusküllane ja praktiline 3-toaline korter Peetris, Rae vallas – ideaalne perele!

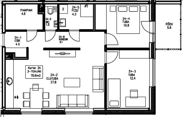
Pindala: 70,6 m² | 2. korrus | Rõdu | 2 parkimiskohta | 2014. aastal ehitatud maja | Maaküte – väga madalad kommunaalkulud | Schmidti köögimööbel

See hea planeeringuga korter sobib suurepäraselt perele – avar, mahukad kapid ja kvaliteetne köögimööbel loovad mugava ja organiseeritud elukeskkonna. Vannituba ja WC eraldi! Korteri juurde kuulub kaks kindlat parkimiskohta otse maja ees.

Maja, mis on ehitatud 2014 tagab energiatõhususe ja mugavuse – maaküte hoiab kulud madalad ka talvekuudel.

Asukoht on suurepärane – kool, lasteaed ja kauplused asuvad jalutuskäigu kaugusel.


Eelmine
Pargi tee 5, Peetri, 3-tuba
Järgmine
Kopli tee 28, Peetri, 3-tuba

2 vastust

Email again:
Marko 16. november 2025
Tere,

Kas see korter on veel saadaval?
Auli 17. november 2025
Tere,

See korter on saadaval alates veebruar/märts 2026. Katsun täpse kuupäeva selgitada selle nädala jooksul. Kui see pakub huvi, siis kirjutage info@catbird.ee